欢迎光临华盈非晶合金变压器有限公司!

1262980066@qq.com

非晶合金干式变压器厂家联系方式

通讯地址:山东聊城经济开发区华山路南首30号
固定电话:0635-8888299
传真号码:0635-8888109
移动电话:13287501888 
联系人:陈经理
电子邮箱:1262980066@qq.com



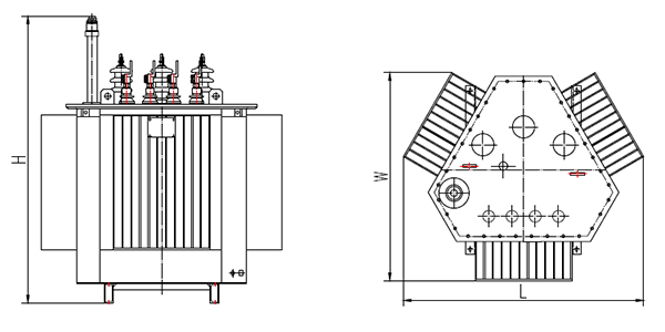
产品展示/洛阳S11/S13-M-R卷铁芯变压器

洛阳S11/S13-M-R卷铁芯变压器

洛阳S11/S13-M-R卷铁芯变压器

详细描述

供应洛阳S11/S13-M-R卷铁芯变压器

产品参数:

洛阳10kV系列产品

华盈S13-M.RL系列10kV     三相油浸式卷铁芯双绕组无励磁调压配电变压器技术参数:



型号

额定容量 
(kVA)

典型电压 组合(kV)

联结组 标号

阻抗电 (%)

总重 
(t)

参考尺寸(m) L*W*H

空载损耗 
(W)

负载损耗 
(W)

S13-M.RL-30

30

高压H.V. 6,6.3,10,10.5
±2×2.5%
 
±5%
 
低压L.V. 0.4

Dyn11 Yyn0

4

0.35

0.8*0.7*0.8

80

630/600

S13-M.RL -50

50

0.45

1*0.85*0.95

100

910/870

S13-M.RL -63

63

0.5

1.1*0.8*1.2

110

1090/1040

S13-M.RL -80

80

0.58

1.1*0.8*1.35

130

1310/1250

S13-M.RL -100

100

0.65

1.1*0.8*1.35

150

1580/1500

S13-M.RL -125

125

0.7

1.1*0.85*1.4

170

1890/1800

S13-M.RL -160

160

0.8

1.1*0.95*1.42

200

2310/2200

S13-M.RL -200

200

0.95

1.15*1*1.5

240

2730/2600

S13-M.RL -250

250

1.1

1.2*1.1*1.5

290

3200/3050

S13-M.RL -315

315

1.3

1.3*1.12*1.5

340

3830/3650

S13-M.RL -400

400

1.45

1.35*1.2*1.55

410

4520/4300

S13-M.RL -500

500

1.9

1.5*1.3*1.6

480

5410/5150

S13-M.RL -630

630

4.5

2.1

1.5*1.3*1.7

570

6200

S13-M.RL -800

800

2.5

1.55*1.35*1.75

700

7500

S13-M.RL -1000

1000

3

1.75*1.5*1.75

830

10300

S13-M.RL -1250

1250

3.5

1.8*1.5*1.9

970

12000

S13-M.RL -1600

1600

4.5

1.9*1.7*2

1170

14500 


洛阳S11/S13-M-R卷铁芯变压器性能特点:

额定频率:50Hz,电压等级:10kV;
突破传统的平面结构,采用三维立体卷铁心,三相磁路对称;
节电节能:较现行“GB/T 6451—2008油浸式电力变压器技术参数和要求”空载损耗平均降低50%,空载电流平均降低70%;
超静:独特的铁心结构,连续无接缝卷绕铁心,噪声相比于叠片式结构,平均降低20分贝;
产品结构紧凑,占地面积小,机械强度高,具有极高的安全性和可靠性。

洛阳S11/S13-M-R卷铁芯变压器先后获得中国节能产品认证、“CCC”认证、洛阳名牌产品、洛阳自主创新产品、洛阳高新技术产品等荣誉,并一次性通过国际KEMA和CESI的全项试验。

    公司的立体卷铁心技术先进,领先世界水平。公司秉承“分享•共享”的企业文化,向行业厂家提供技术输出服务,授权国内知名变压器制造企业和国际企业500强企业使用非独家立体卷铁心项目专利许可技术生产立体卷铁心变压器,共同促进立体卷铁心技术发展。
    公司已通过ISO9001质量管理体系、ISO14001环境管理体系、OHSMS18001职业健康安全管理体系和洛阳二级计量体系认证,严格实行ERP物流系统管理及6S现场管理等。公司已取得南方电监局颁发的五级《承装(修、试)电力设施许可证》,为用户提供节能技术改造、能源合同管理、承装、承修、承试等技术服务。
    节能、环保是当今社会发展的主题,凭借敏锐的市场触觉,公司率先调整产品结构,在配电变压器领域开发出能效一级、二级、三级产品,并于2017年8月25日入围第一批节能产品惠民工程高效节能配电变压器推广企业目录,成为洛阳首家入围企业。截止2017年8月25日,公司共136个规格产品纳入节能产品惠民工程高效节能配电变压器推广目录。



点击次数:233663  更新时间:2017-08-18  【打印此页】  【关闭
上一篇: 洛阳SH15-M非晶合金变压器(全铜)                                     下一篇: 洛阳35千伏油浸式电力变压器(S11)

通讯地址:山东聊城经济开发区华山路南首30号
固定电话:0635-8888299
传真号码:0635-8888109
移动电话:13287501888 
联系人:陈经理
电子邮箱:1262980066@qq.com



Copyright © 2025 洛阳非晶合金变压器_洛阳干式变压器_华盈非晶合金变压器有限公司 鲁ICP备16029283号-3  技术支持:互联纵横